06 Juni Haus Zull
Posted at 20:44h
in Projekte
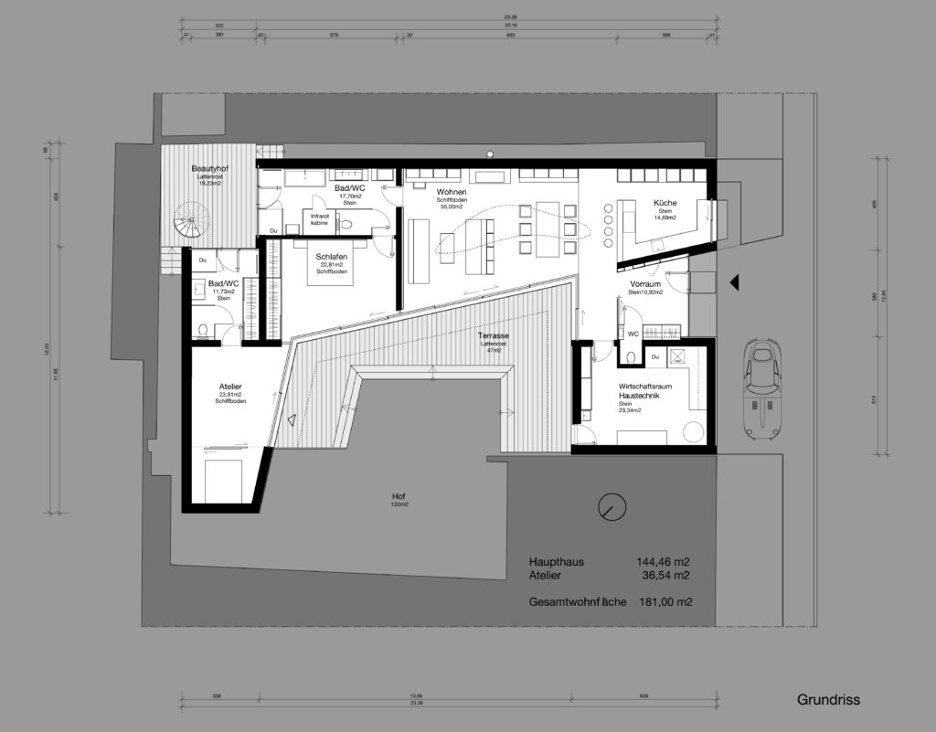
Ein typisches L-förmiges Haus, zur Strasse hin geschlossen, Wirtschaftsraum und Küche nach vorne, die Wohnräume nebeneinander aufgefädelt im Hof, das alles zusammengefasst mit durchgehender Glasfront und breiter Terrasse. Vom Hof aus unsichtbar, versteckt sich noch ein zweiter kleiner Hof, der nur durch die beiden Badezimmer erreichbar ist und vom Architekten augenzwinkernd ´Beautyhof´ getauft wurde.
Maik Novotny
in Der Standard
DETAILS:
Schrattenthal 25 / Niederösterreich
Auftraggeber: Familie Zull
Kunst: Heimo Zobernig
Nutzfläche: 181 m2
Planungsbeginn: 12/2010
Fertigstellung: 12/2012
Auszeichnung: SolarPlexus 2012








